
The Innovation Series features several reasonably priced, multi-section models. These larger double-wide homes typically feature three or more bedrooms and a popular split-floor layout. Stay tuned for additional models!
All Innovation Multi-Section models come equipped with an impressive array of contemporary standard amenities such as nationally recognized brand name appliances, factory crafted cabinetry and “Craftsman Style” trim. 25-year composite shingles also come standard. Please visit our factory located model village to learn more.
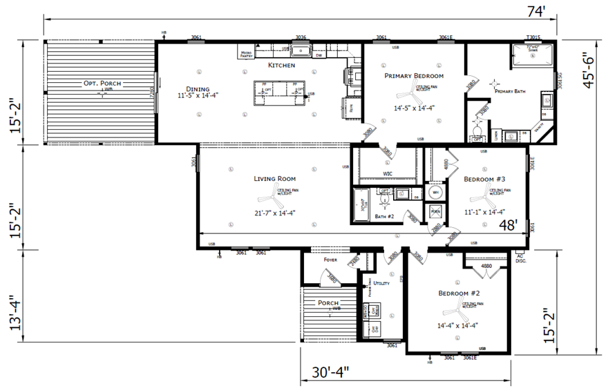
Innovation Series – Multi-Sections Floor Plans
Standard Features
CONSTRUCTION:
- Wind Zone I
- Floor Joists 2X8 16” OC
- Ventilated Eaves Sides Vented 8” Hardi; 12” Solid F&R Soffit
- Sidewall 28W 8’ / 32W 8’ 6”
- Ceiling 28 Wide Vault Living Area / 32 Wide Flat
- Roof Pitch 28W Nominal 4/12 / 32W Nominal 3/12
- Interior Walls 2X4
- Exterior Walls 2X6
- Dbl Marriage Wall 2X4 EA. SIDE
- Dormer Per Print
- Floor Decking 19/32” T&G OSB
- Removable Hitch Std
- Close up Vault – Plank Beam / Flat Foam Beam
THERMAL:
- Wall Insulation R-19
- Floor Insulation R-29
- Roof Insulation R-40
PLUMBING / HEATING:
- 2 Exterior Water Faucets
- Furnace Upflow
- Whole House Vent Ventilaire III
- Furnace Door
- Water Heater 50 Gallon – Electric
- Water Shut-Off Valves
- Master Shut-Off
ELECTRICAL:
- AC Disconnect
- 20A Freezer Plug (where applicable)
- 200 Amp Service
- Light Switches Toggle
- Ceiling Fan 3 Blade CFs STD (Main Areas & ALL Bedrooms)
- USB/C Charger 2 in Kitchen, Main Areas, and Bedrooms
- Wire & Brace Main Areas and Bedrooms where applicable & 1-Porch
UTILITY:
- W/D Overhead OH Cabinets
LIGHTING:
- Throughout 6” LED Can Lights T/O & CFs Per Print
- Kitchen Island Pendants Optional
- Front Exterior Light Progressive Exterior Light / Recessed Porch will
- Rear Exterior Light 6” LED Can Light in Eave
INTERIOR:
- Interior Trim Colonial
- Door Hardware Black Lever
- Wall Coverings 1/2” Sheet Rock
- Ceiling 1/2” Sheetrock w/ T&T
- Hardware Black
- Closet Shelving Shelf & Rod All Closets
- Pantry Shelving 3 Shelves
- Window Trim Cased Window
- Interior Doors 3-Panel
- Utility Room Door 30” Louvered Door
- Heavy Door Hinges 3 Standard
- Door Stops On Hinge
CABINETS:
- Crown above all O/H Cabs Flat 3” OH Cabinet Crown
- Entertainment Center Optional
- Cabinet Door / Stiles Wood Cab Doors/ Wd Stiles
- Pot & Pan Drawer Kitchen 2 Standard per print
- Base Cabinet System Drawer over Door
- Overhead Kitchen Cabs 42”
- Refrigerator Cabinet Cabinet over Refrigerator
- Cabinet Hardware 5” Black Metal Cylinder Pulls
- Drawer Hardware 5” Black Metal Cylinder Pulls
- OTHER Panel Box Décor Cover
- OTHER Water Heater Coat Hook Cover (when applicable)
EXTERIOR:
- Roofing Galvalume Metal
- Exterior Window Trim 6”x3/4” Window Trim – ALL SIDES
- Front Door Farmhouse Door w/ Storm
- Rear Door 9 Lite Rear Door
- Patio Door Standard when required – Per Print
- Door Hardware Black Deluxe
- Fascia Smart Panel – Painted
- Soffit Hardi Vented Side Soffit
- Siding Smart Panel/Painted
- House wrap
WINDOWS:
- Windows White Thermopane
- Mini Blinds 2” Faux Wood
- Windowsills/Facing White Cased Window W/Sill
KITCHEN:
- Countertop Backsplash to Bottom of OH Cabinets
- Backsplash Behind Ceramic Backsplash to Ceiling
- Range Hood Stonecrest
- Microwave Oven Built In (per print)
- Sinks SS Single Drop In Kitchen Sink
- Faucets Pull Down SS/Black
- Counter Tops Post Formed
- Dishwasher SS Whirlpool
- 25cuft SS SxS Refrigerator
- Range Smoothtop SS Electric Range
BATHROOMS:
- Sinks Square
- Faucets Black metal
- Drawer Bank Drawer Banks & 3 Door Linens
- Bath Mirror 24”x36” Black Metal Framed Mirror
- Primary Bathtub Freestanding (when applicable)
- Primary Bath Shower 72” Palisade Shower
- Secondary 60“ Palisades Tub/Shower
- Vanities 36” High W/Toe Kick
- Countertop 1 Row Ceramic
- Toilet Elongated
- Towel bar/Tissue
- Bath Exhaust Fan









































